voltar para a home
sobre a j.arduin conjuntos residenciais j.arduin edifícios residenciais j.arduin condomínios horizontais j.arduin edifícios comerciais j.arduin
voltar para a home
facebook j.arduin linkedin j.arduin youtube jarduin envie uma mensagem fale conosco
 
Bela Vista Medical - Projetos Edifícios Comerciais retornar para o menu de projetos
 
   
bela vista medical - edifícios comerciais - fachada e ficha técnica Fachada e Ficha Técnica
Empreendimento: Bela Vista Medical
Data: 2013
Área do terreno: 800 m²
Área construída total: 3.282 m²
Tipologia: Edifício Comercial
Incorporação: Souen & Nahas
Construção: Souen & Nahas
Projeto arquitetônico: J.Arduin Arquitetura
Local: Rua Barata Ribeiro, nº 176 - Bela Vista /SP

   
 
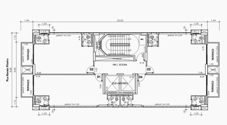
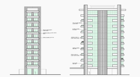
bela vista medical - edifícios comerciais - implantação bela vista medical - edifícios comerciais - elevação lateral e frontal  
 
Implantação Bela Vista Medical Elevação Lateral e Frontal Bela Vista Medical
Navegue no menu abaixo e conheça outros Projetos de Edifícios Comerciais
  vila olímpia offices - edifícios comerciais bela vista medical - edifícios comerciais new avenue trade hall - edifícios comerciais  
   
R. Joaquim Antunes, nº 104
Jd. América - CEP 05415-000 | São Paulo - SP - Brasil
Tel. +55 11 3082.7160 | Fax. +55 11 3085.7307 | E-mail: arquitetura@jarduin.com.br
Copyright © 2013 - J.Arduin Arquitetura e Planejamento Ltda | Todos os direitos reservados